AveryMount(7.5t-100t)称重模块

AveryMount称重模块独特的结构装置能够使模块在不安装传感器时承受100%额定载荷 不锈钢、碳钢两种结构件 •适合动、静载两种称重应用

产品介绍 Introductions:


防倾覆保护

防过载保护 

360°周向水平限位保护

支持现场无传感器安装,保护传感器

不锈钢、碳钢两种结构件 

自复位功能,计量性能精准可靠 

2只水平拉杆稳定设备的晃动 

适合动、静载两种称重应用

简单,安装方便,不需要其它工具

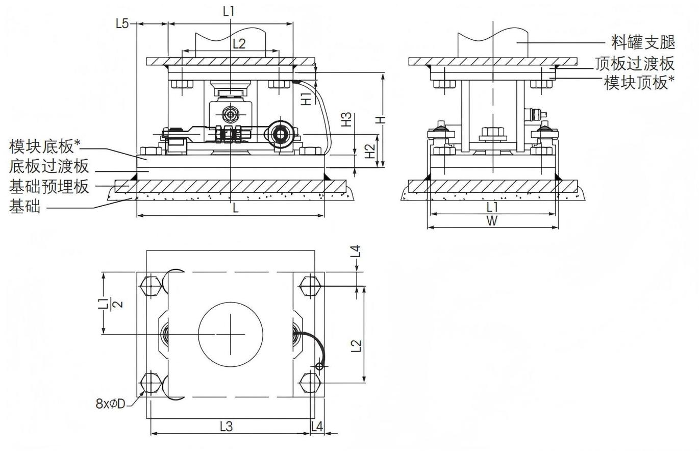
外观尺寸 Dimensions:


image.png

没有上一个 下一个:Max103称重控制器
用手机扫描二维码关闭
二维码